3 VARIANTA
TŘETÍ VARIANTA
JÁN PALOČKO - ATBS
HUSTOTA/BYDLENÍ/MĚSTKOST
ATELIER ONDŘEJE CÍSLERA
- PARKOVÁNÍ SPOLEČNE ŘEŠENÉ V BLOKU
 - PARTER - RESTAURACE, ZÁZEMÍ RESTAURACE, VSTUPY,
 - 2NP - ZÁZEMÍ + BYTY 
 - BYTY: 5 PODLAŽÍ
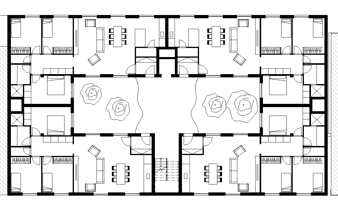
 - 4x4+kk, BYTY PRO RODINY
 - 4x2+kk + 4x1+kk, MENŠÍ JEDNOPOKOJOVÉ/DVOUPOKOJOVÉ BYTY
 - ÁTRIUM UPROSTŘED BUDOVY, HUSTOTA, SVĚTLO, PŘÍJEMNÉ KOMUNIKACE
 
| SITUACE | 
![]()  | 
| TYPICKÉ PODLAŽÍ, 1POKUS, 4x4+kk, orientace Z-V | 
![]()  | 
| 2POKUS | 
![]()  | 
| 3POKUS | 
![]()  | 
| 3D Typického podlaží | 
![]()  | 
| Forma dvojitej fasády | 
![]()  | 
| 3D s dvojitou fasádou | 
![]()  | 
| SITUACE V BLOKU | 









Komentáre
Zverejnenie komentára