2 VARIANTA
DRUHÁ VARIANTA
JÁN PALOČKO - ATBS
HUSTOTA/BYDLENÍ/MĚSTKOST
ATELIER ONDŘEJE CÍSLERA
- PARKOVÁNÍ SPOLEČNE ŘEŠENÉ V BLOKU
- PARTER - RESTAURACE, ZÁZEMÍ RESTAURACE, VSTUPY, ZÁZEMÍ BUDOVY, SKLADY
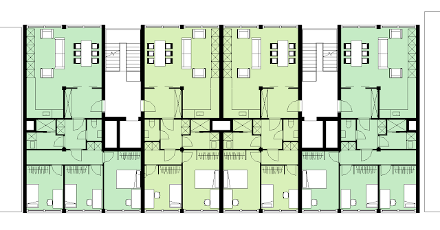
- BYTY: 5 PODLAŽÍ - 4x4+kk, BYTY PRO RODINY
- 2 KOMUNIKACE - MINIMÁLNI PROPORCE, ZRCADLOVÉ SCHODIŠTE
| SITUACE |
![]() |
| SKICA |
![]() |
| PARTER, RESTAURACE, VSTUPY |
![]() |
| ZÁKLADNÍ PATRO, DISPOZICE: 4x4+kk, orientace Z-V |
![]() |
| ŘEZ SVISLÝ |






Komentáre
Zverejnenie komentára